If you’re looking for more space, more flexibility, and a home that truly fits your lifestyle… building your own barndominium might be the perfect option.
Barndominiums are becoming one of the most popular ways to build a custom home in the Upstate—and for good reason.
In this guide, we’ll break down exactly what a barndominium is, your building options, pricing, and how to get started.
What Is a Barndominium?
A barndominium (or “barndo”) is a modern home built with a metal or post-frame structure, designed to give you open space, high ceilings, and flexible layouts.
It combines the durability of a barn with the comfort and style of a custom home.
Think:
- Open floor plans
- Large kitchens and living spaces
- High ceilings and natural light
- Space for garages, workshops, or storage
- Modern farmhouse or contemporary design
For example, one of our featured plans includes over 3,300+ sq ft with open living space, vaulted ceilings, and large porches—showing how spacious and functional these homes can be.
4-bed custom barndominium on 5 acres with no HOA—featuring an open layout, high ceilings, and oversized garage space. Sold for $710,000 in 2026.
Why Build Your Own Barndominium?
Tailored To You
You get to choose everything—from your floor plan to finishes, colors, and features. Your home is built around your lifestyle, not the other way around.
Budget Friendly
Most projects typically range from $750,000 to $950,000, depending on size, land, and customization.
Faster to Build
On average, it takes 3–6 months to build a barndominium in South Carolina, compared to 6–12+ months for a traditional home.
What Are Your Options?
1. Choose From Existing Builds (In Progress)
Choose from barndominiums for sale in South Carolina that are currently under construction, and personalize select finishes before they’re complete.
This is the fastest way to move in.
2. Choose Your Floor Plan & Build From Scratch
Pick your layout, materials, and design—we handle the build from start to finish.
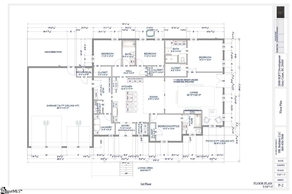
For example, one of our available layouts offers:
- 2,700+ sq ft living space
- Open kitchen + living design
- Dedicated office + multiple bedrooms
- Large garage + outdoor porches
3. Build on Your Own Land
Already have land, or exploring land in South Carolina for sale? We’ll design and build your barndominium right on your property from start to finish.
This option gives you full control over your location, layout, and lifestyle.
Is It Cheaper to Build a House or Barndominium?
In many cases, barndominiums can be more cost-effective, especially for larger homes.
Why?
- Simpler structural systems
- Faster build time (lower labor costs)
- Flexible design reduces wasted space
However, final cost depends on:
- Land
- Finishes
- Size
- Custom features
What Is the Lifespan of a Barndominium?
Barndominiums generally offer a longer structural lifespan of 50–100+ years compared to traditional wood-frame homes, largely due to their durable steel frames that resist fire, mold, rot, and termites. While traditional homes often require major repairs after 30–40 years, metal-shell barndos provide lower exterior maintenance and greater durability against weather.
They are:
- Durable
- Resistant to weather and pests
- Lower maintenance compared to traditional wood homes
What Is the Average Cost of a 2,000 Sq Ft Barndominium?
A 2,000 sq ft barndominium typically costs:
👉 $300,000 – $500,000+
This depends on:
- Interior finishes
- Layout complexity
- Land and site prep
- Garage or workshop additions
What Is a Barndominium and How Does It Differ From a Traditional Home?
The main difference comes down to structure and flexibility.
Barndominium:
- Metal or post-frame structure
- Open layout design
- Faster build
- More customizable
Traditional Home:
- Wood framing
- More segmented rooms
- Longer build timeline
- Often higher cost per square foot
How Much Does It Typically Cost to Construct a Barndominium?
Most custom barndominiums fall in the range of:
👉 $750K – $950K in Upstate South Carolina
This includes:
- Construction
- Materials
- Standard finishes
Final pricing depends on your choices.
Ready to Build Your Own Barndominium?
Building a barndominium is one of the best ways to create a home that fits your life—without settling for something that wasn’t designed for you.
Whether you:
- Want land and privacy
- Need more space
- Or just love the modern farmhouse style
We can help you every step of the way.
📩 Reach out to us to explore your options, pricing, and available builds.



